• Home
  • M
  • About
  • M
  • Portfolio
    • Projects of Distinction
    • Civic
    • Institutional
    • Multi-unIt Residential
    • Industrial
    • Commercial
    • Custom Home
    • Residential Add. / Reno.
  • M
  • Contact
  • M
  • MZE/news
  • M

What our architects can do for you

Our Architects, Interior Designers, dedicated Staff, and Consultants offer your project professional attention, creating imaginative, vision-directed design solutions to meet your project requirements. Architectural services include design, preparation of construction documents & construction administration.

We provide a wide variety of complementary services, including:

project management / feasibility studies / site selection / building condition audits / programming / sustainable design + LEED® Coordination / interior design / renderings, 3D models + promotional materials / full time site representation / multiple contract preparation

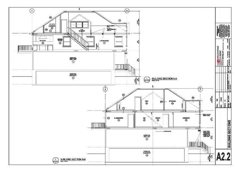
Loft Living Downtown

This purpose built duplex has been transformed into a three unit dwelling after the owners decided to move closer to their Downtown business. The entire top floor is now occupied as their loft residence. Additional space was added by reinforcing the ceiling and roof structure to create habitable space in the attic. The images were provided by the owners…

Builder - Silvergate Homes

« Go Back

    Portfolio
    • Projects of Distinction
    • Civic
    • Institutional
    • Multi-unIt Residential
    • Industrial
    • Commercial
    • Custom Home
    • Residential Add. / Reno.

Designing to save you time & money!

We provide proper project planning, suggest numerous design considerations, material selections, and durable detailing to all of our Clients. If there are changes to the scope of the project they are more easily done while on paper than on the job site. We often provide 3D modelling as a tool to clearly communicate with our Clients throughout the design process. Our final design drawings and project specifications capture the full scope of a project and provides the opportunity for competitive tendering to qualified Contractors. 

  • You can't love what you can't see...
  • Contractors can't quote what they can't see...
  • We'll show you what's possible!
  • Learn More
  • MZE/architecture+design inc.

    96 Church St, St. Catharines, ON L2R 3C8
    905-685-8467

    • F
    • i
    EMAIL US

© 2025 MZE/architecture + design inc.