• Home
  • M
  • About
  • M
  • Portfolio
    • Projects of Distinction
    • Civic
    • Institutional
    • Multi-unIt Residential
    • Industrial
    • Commercial
    • Custom Home
    • Residential Add. / Reno.
  • M
  • Contact
  • M

What our architects can do for you

Our Architects, Interior Designers, dedicated Staff, and Consultants offer your project professional attention, creating imaginative, vision-directed design solutions to meet your project requirements. Architectural services include design, preparation of construction documents & construction administration.

We provide a wide variety of complementary services, including:

project management / feasibility studies / site selection / building condition audits / programming / sustainable design + LEED® Coordination / interior design / renderings, 3D models + promotional materials / full time site representation / multiple contract preparation

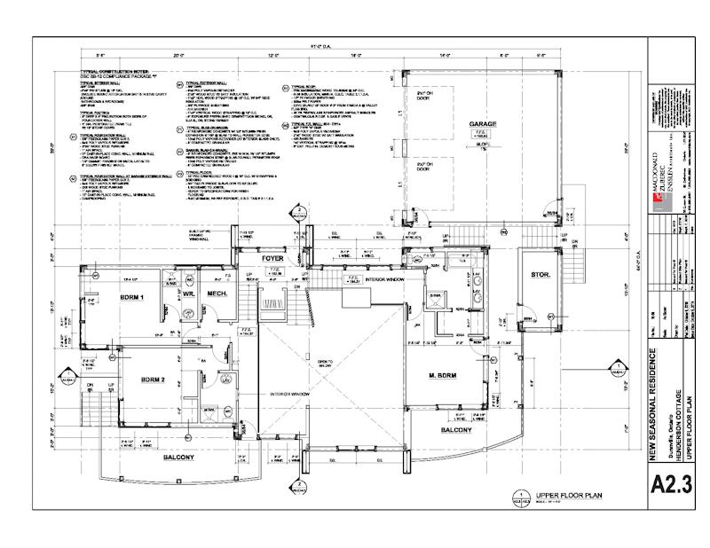
Henderson Lake House

A custom home designed for a family retreat, and as an income property when not used by the family, this home is one of two that we designed on adjacent properties on the shore of Lake Erie at Port Maitland. Each of the 5 bedrooms were oriented to have views of the lake and balcony access. On the interior the centrally positioned great room organizes the plan with adjacent ground floor common rooms down from the split entry vestibule and private suites up to enjoy the view.

« Go Back

    Portfolio
    • Projects of Distinction
    • Civic
    • Institutional
    • Multi-unIt Residential
    • Industrial
    • Commercial
    • Custom Home
    • Residential Add. / Reno.

Designing to save you time & money!

We provide proper project planning, suggest numerous design considerations, material selections, and durable detailing to all of our Clients. If there are changes to the scope of the project they are more easily done while on paper than on the job site. We often provide 3D modelling as a tool to clearly communicate with our Clients throughout the design process. Our final design drawings and project specifications capture the full scope of a project and provides the opportunity for competitive tendering to qualified Contractors. 

  • You can't love what you can't see...
  • Contractors can't quote what they can't see...
  • We'll show you what's possible!
  • Learn More
  • MZE/architecture+design inc.

    96 Church St, St. Catharines, ON L2R 3C8
    905-685-8467

    • F
    • i
    EMAIL US

© 2025 MZE/architecture + design inc.